
By Leslie Nemo
The building of Mountain Dell Dam for Salt Lake City helped John S. Eastwood prove an engineering concept — and himself.
Eastwood was in a difficult spot when he visited Salt Lake City in 1915. He had lost most of his money when a business partnership failed in 1912. And a year later, another civil engineer had persuaded a client to drop Eastwood from a project.
But Salt Lake City had asked Eastwood to submit a design for a dam, an encouragement he might have needed at a time when he was advertising his engineering abilities in trade magazines, as many others did. The resulting Mountain Dell Dam is one of the few publicly funded multiple-arch dams that Eastwood, the most prominent advocate of the design, ever built. The structure also gave Eastwood the boost in credibility he needed to continue in his career.
Although Eastwood’s name would eventually be almost synonymous with the multiple-arch design, he was not the first to build it. The premise behind the design — a series of convex surfaces facing upstream that are backed by buttresses — appears in a Roman design in Esparragalejo, Spain, dating to the first century AD, and the Mir Alam Tank near Hyderabad, India, that was built in 1808.

Some of Eastwood’s contemporaries had also laid out similar ideas in plans and papers published around the start of the 20th century. Whether these drafted concepts gave Eastwood the idea to build a multiple-arch structure is not clear, noted Donald C. Jackson, Ph.D., in his book Building the Ultimate Dam: John S. Eastwood and the Control of Water in the West. Either way, he was the first to execute construction for this dam style in the United States when he finished the Hume Lake Dam in 1908.
Up to that point, one of Eastwood’s most significant accomplishments was the construction of a hydroelectric plant for the San Joaquin Electric Co. in 1895. Eastwood, who had attended the University of Minnesota, was the company’s chief engineer at the time. When the company went bankrupt, Eastwood shifted to working on commissioned structures around the West Coast.

The construction of Hume Lake Dam, however, was not the largest project he was juggling. Eastwood proposed and executed the design during another construction endeavor he had been working on since 1902: a power plant and dam combination called the Big Creek Complex for the Pacific Light and Power Co.
Tucked into the forests of California’s Sierra Nevada, Hume Lake Dam signified a bigger advance in American engineering than its 600 ft span would suggest, at least according to Eastwood. “It cannot be touched by any other type of dam of a permanent nature, in cost, in permanence, in freedom from upkeep charges or in the safety against destruction from any cause,” Eastwood wrote in the 1909 article “Hume Lake Dam” for the Journal of Electricity Power and Gas.

Hume Lake Dam had another notable feature that did not get as much attention in the engineer’s glowing review of his own construction. It was built using reinforced concrete, just 20 years after the Alvord Lake Bridge in San Francisco was erected — the first steel reinforced-concrete arch bridge in the United States. The bridge is a National Historic Civil Engineering Landmark.
Eastwood’s confidence in the affordability and strength of his multiple-arch design was probably useful the following year in November 1910, when Pacific Light and Power formally asked him to stop working on the Big Creek Complex. Eastwood had suggested a few dam designs for the project, including the multiple-arch style. His calculations showed its cost would be $500,000, or $2 million less expensive than other types, but management was not interested.

At first, the loss of the contract might have seemed like a minor setback. After all, months after Pacific Light and Power terminated his involvement in a project, another company hired him to execute a multiple-arch design. That company was Great Western Power Co., which contracted Eastwood to build what would be called the Big Meadows Dam in northern California.
Here too, however, Eastwood’s work was destined to end before construction was complete. When the company president died, other leadership at Great Western asked someone new to serve as a consultant on the coming construction. They tapped John R. Freeman, Hon.M.ASCE. A civil engineer based on the East Coast, Freeman advised on a range of structures around the country, such as the Hetch Hetchy Dam in California’s Yosemite National Park. He served as president of the American Society of Mechanical Engineers in 1905 and as ASCE president in 1922. A historical sidenote: The Hetch Hetchy Dam was later renamed the O’Shaughnessy Dam after Michael M. O’Shaughnessy, M.ASCE, the city engineer for San Francisco.

Before being formally asked to weigh in on Eastwood’s plans for Big Meadows, Freeman had already taken the opportunity to express his reservations to company employees. As a stockholder in Great Western, he had an interest in the chosen dam design, he related to a fellow board member, and he was doubtful of the multiple-arch choice. “There is nothing quite so satisfying as a big solid mass of concrete,” he wrote.
However, in Freeman’s official report to the company, his recommended changes hardly touched on structural or functional questions, Jackson wrote in Building the Ultimate Dam. “Technical analysis of Eastwood’s design was superseded by issues of psychology, appearance, and public opinion.” These sentiments were repeated in a follow-up document Freeman submitted with Alfred Noble, a fellow civil engineer and former ASCE president (1903).
To Freeman, a dam had to be more than functional — it had to look trustworthy to the public. A thick gravity dam and its solid facing conveyed a reassuring heft to anyone wondering how well the structure would hold up against the millions of gallons of water it would retain. Eastwood’s dam, Freeman believed, did not inspire the same confidence, with its buttress design and bracing that ran in perpendicular bars from one buttress to the next.
“The psychology of these airy arches and the lace curtain affects ... (are) not well suited to inspire public confidence,” Freeman wrote to A.P. Davis, M.ASCE, the chief engineer of the U.S. Reclamation Service, who did not have an official role in Great Western. Davis served as ASCE president in 1920.
In the meantime, Eastwood was also facing financial trouble connected to the Big Creek Complex. Though he had not worked on the project since 1910, he held 10% of the original Pacific Light and Power stock. In September 1912, the company absorbed and essentially canceled Eastwood’s holdings, paying him nothing for his shares.
Just months later in March 1913, Great Western informed Eastwood that it would be pivoting from a multiple-arch dam to a gravity-style one at Big Meadows. Construction, which had already involved building ancillary support structures such as roads, stopped.

Eastwood received a few small commissions, such as a 350 ft long multiple-arch irrigation dam in the Sacramento Valley during the summer of 1913 and a slightly larger model for a mining company also in California. But on the whole, Eastwood’s work options were slim enough that he promoted his preferred dam style however he could.
He wrote about the durability, thrift, and adaptability of the multiple-arch dam for Western Engineering in the 1913 article, “The Ultimate Dam,” claiming “there is no type of structure for the barrage of water that can be varied in design to meet so many differing conditions.” An advertising pamphlet dedicated to Eastwood and his ability to provide customers with cost-effective construction was disseminated with a 1915 issue of the same publication.
Perhaps some of Eastwood’s writings reached the desk of Sylvester Q. Cannon, the city engineer for Salt Lake City, because in 1915, he contacted Eastwood requesting that the multiple-arch enthusiast submit a bid to build a dam. The city did not have a reliable or adequate water supply, a problem that residents felt most acutely in the summer and winter. A bond issue funded two water storage construction projects for the city, and Cannon wanted Eastwood to build the larger of the pair.
The city accepted Eastwood’s plans as well as those of two other designs — a curved gravity dam and a “reinforced-concrete dam of the Ambursen type,” according to Cannon’s September 1917 report of the construction process to the Utah Society of Engineers. All three were put out for bids. Eastwood’s design was by far the most affordable, with a low bid of $138,839 compared with $216,587 and $226,212 for the competitors.
According to Cannon as described in the 1972 Historic American Engineering Record report compiled by T. Allan Comp, the multiple-arch style also won out because it seemed the best suited for building on the calcareous shale bedrock at the chosen construction site, which was not watertight and stood a chance of degrading when exposed to air or water. “The advantages of the multiple-arch type in this connection were considered to be the practical elimination of upward pressure, the practical impossibility of overturning or sliding on its base, and the ready facilities for internal inspection of the dam at any time,” Cannon wrote.
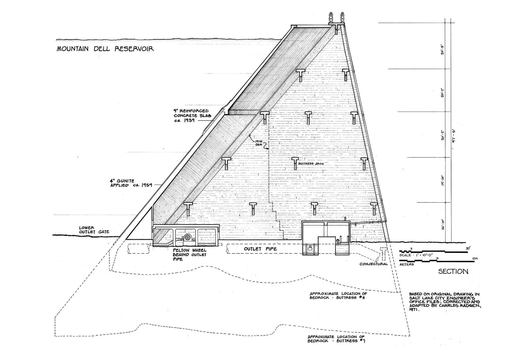
Construction began in April 1916. The dam’s 11 buttresses and 11 arches rest on an excavated foundation that is 43 ft below ground level. At its thickest, the reinforced-concrete dam runs 132 ft from the face of one arch to the end of its supporting buttress. The concrete, which flowed down from a 125 ft tall distribution tower via gravity-powered chutes, was placed into forms that made two mirror-image segments.
The result was an arch with three hinges: two on either side of the springing line and one at the crown. Where the faces of each arch segment touched, workers painted them with asphalt. By constructing the arches in pieces, Eastwood intended for pressure or stress from rib shortening (temperature fluctuations) to flex the structure instead of break it.
In August 1917, construction finished on the Mountain Dell Dam for the time being. Eastwood’s designs called for a structure that reached 145 ft above the foundation, but funding limits made the city pause work and put the dam to use at 105 ft and 300 million gallons of storage. Salt Lake City would fund the last bit of Eastwood’s design in 1924. Unfortunately, the engineer was not alive to see it: He had a fatal heart attack while swimming earlier that year.

In the last seven years of his life, Eastwood found further work building 18 more multiple-arch dams, in part because of his time in Salt Lake City. “The support of Cannon gave Eastwood a major boost to his career as a dam design engineer,” wrote Jackson, quoting his book, in the 2020 article, “Innovation in Hydraulic Design: John S. Eastwood and the Multiple Arch Dam (1908–1924)” for the World Environmental and Water Resources Congress.
If the prevailing thought at one time was that the best dam designs were the ones that were as visually reassuring as they were structurally sound, then it seems the sight of the Mountain Dell construction was compelling enough for some people. Cannon was Mormon — he eventually served as the presiding bishop in the Church of Jesus Christ of Latter-Day Saints — and after Mountain Dell Dam, two other businesses affiliated with church members contracted with Eastwood for multiple-arch bridge designs in Idaho.
The Mountain Dell Dam, which impounds water for the Mountain Dell Reservoir, has been on the National Register of Historic Places since 1980 and still serves Salt Lake City today. Water has seeped through the concrete over time, and freeze-thaw cycles have chipped at the downstream face of the dam, requiring repairs that are projected to conclude this year. And while this particular multiple-arch dam might not be “as permanent as the hills and a part of the geology of the earth” as Eastwood said of Hume Lake Dam, it still has quite a bit of life left.
Leslie Nemo is a journalist based in Brooklyn, New York, who writes about science, culture, and the environment.
This article first appeared in the May/June 2025 issue of Civil Engineering as “Airy Arches.”
Author’s note: A special thanks to Donald C. Jackson, Ph.D., whose scholarship on Eastwood over the decades was crucial to the writing of this article. For any readers interested in expressing their thoughts about if or how engineering aesthetics can build public trust, contact me at www.leslienemo.com.